惠安世茂智行房地产有限公司向我局申请,拟在符合各项规划指标及要求的基础上,将原审批的世茂花田南乡小区设计方案进行优化调整(具体调整细节详见公示图件)。
根据《福建省城乡规划信息公开公示暂行办法》,现将惠安世茂智行房地产有限公司开发建设的《世茂花田南乡小区及建筑设计方案调整》予以审批前公示。公示时间为2023年6月14日至2023年6月23日。在此期间内,欢迎群众以来电、来信、来访的形式向bsport体育
自然资源局反映情况,发表看法和意见。
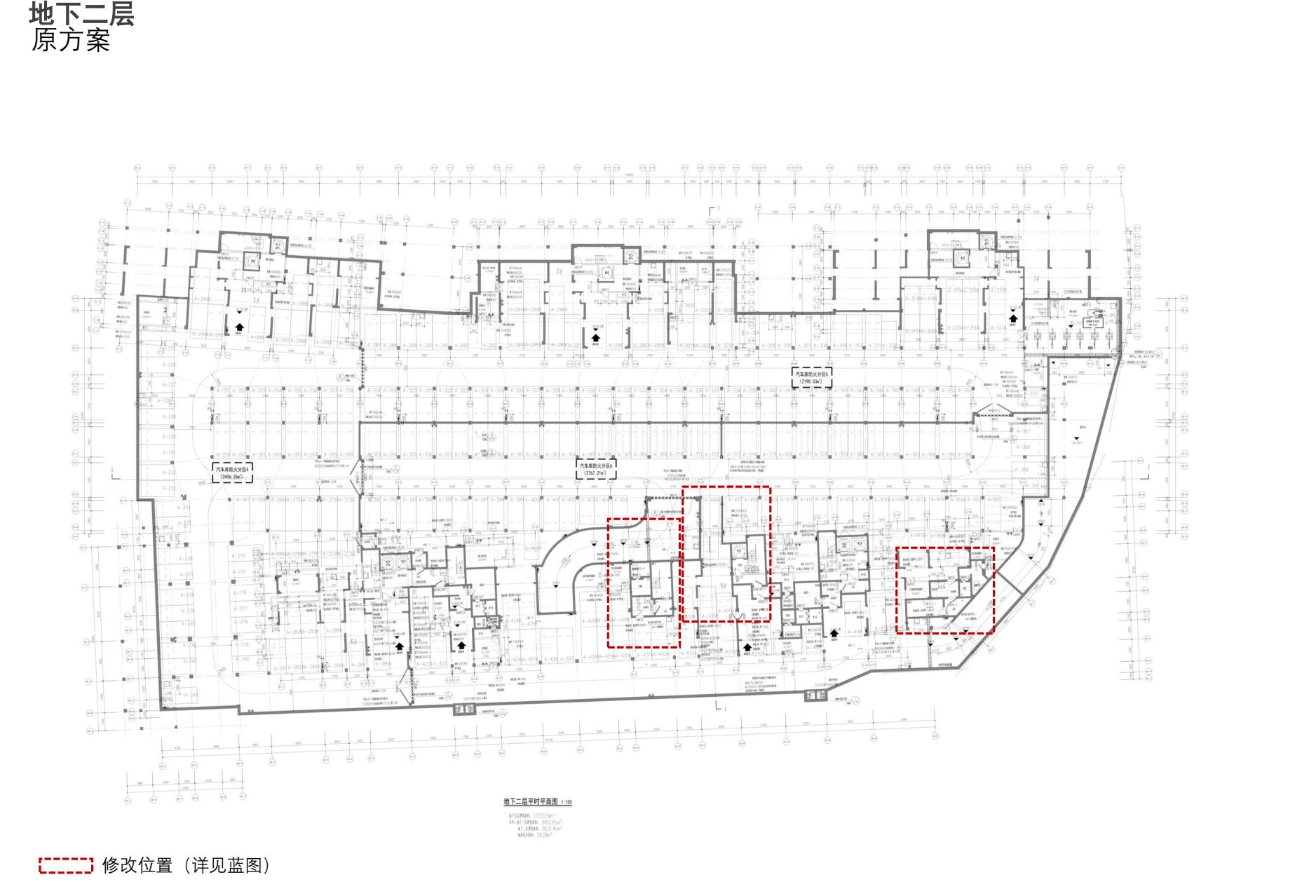
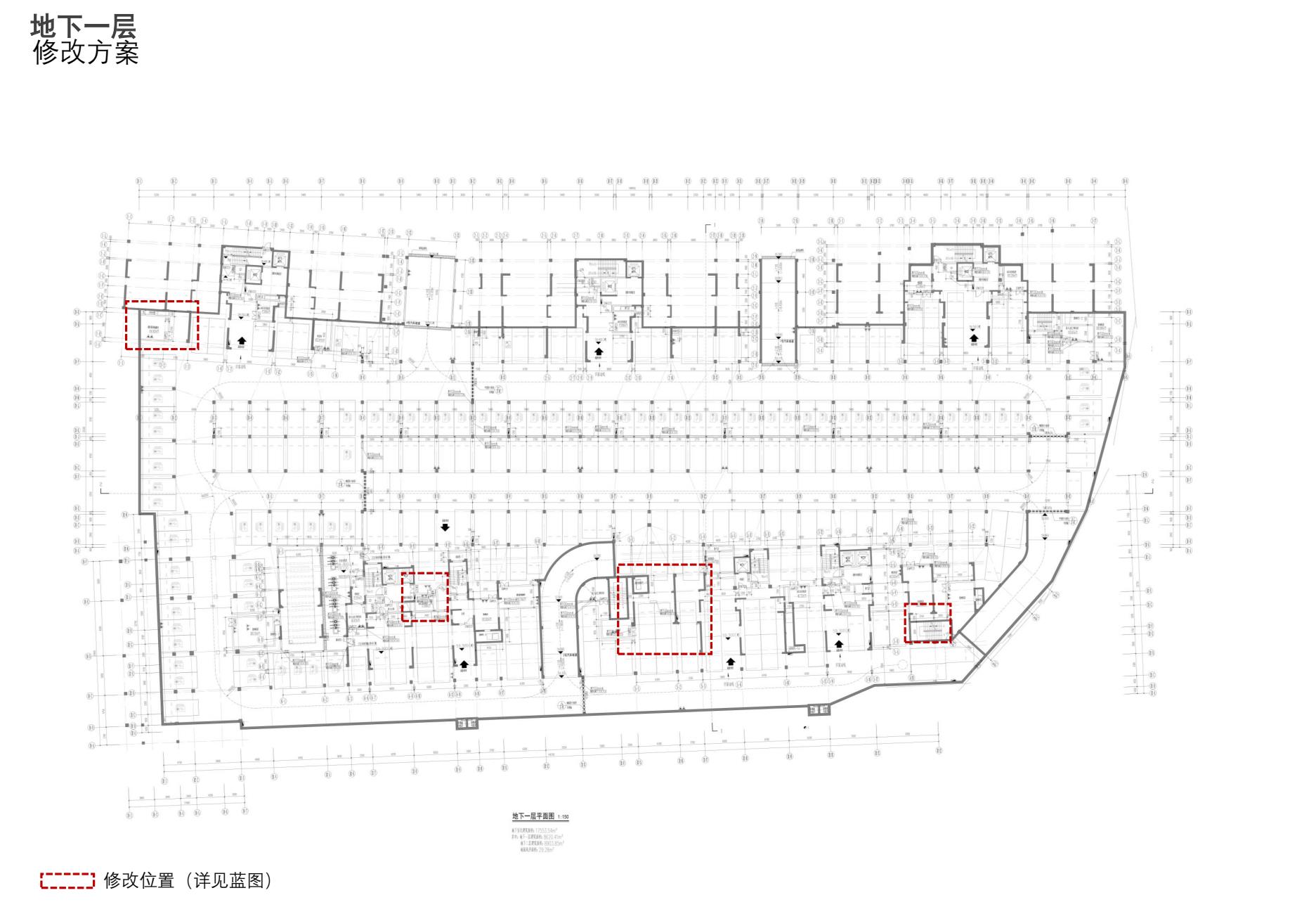
公示图件:世茂花田南乡小区规划总图、地下室平面图、指标表及1#、2#、3#楼单体图调整前后方案
公示地点:1.县自然资源局公示栏
2.公示网站://bsporthub.com
3.世茂花田南乡小区项目工程部公示栏
4.世茂花田南乡小区售房部公示栏
公示形式:设立公示栏公开公示
公示电话:0595-87310219
来访来电时间:公示期间工作日,上午8:00-12:00
下午3:00-6:00
接待处:bsport体育
自然资源局技术站
来信投递:螺城镇建设南路bsport体育
自然资源局,邮编:362100
C:\fakepath\1.jpg C:\fakepath\2.jpg C:\fakepath\3.jpg C:\fakepath\4.jpg
C:\fakepath\5.jpg C:\fakepath\6.jpg C:\fakepath\7.jpg C:\fakepath\8.jpg
C:\fakepath\9.jpg C:\fakepath\10.jpg C:\fakepath\11.jpg C:\fakepath\12.jpg
C:\fakepath\13.jpg C:\fakepath\14.jpg C:\fakepath\15.jpg
bsport体育
自然资源局
2023年6月6日
扫一扫在手机上查看当前页面


闽政通APP
闽公网安备:35052102000001号

